Продается однокомнатная квартира
Бетанкура 7, район Канавинский (Мещерское озеро мкр.)
01.04.2026






















Стоимость
10 990 000 ₽
238 913 рублей за м2
238 913 рублей за м2
Количество комнат
1 комн
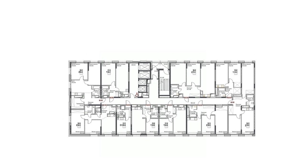
Общая площадь
46 м²
Этаж
3 из 24
Несуществующий объект, неправильная информация? - обязательно сообщите.
Дополнительная информация:
продается 1 комнатная квартира на 3 этаже нового жилого комплекса бизнескласса грандквартал бетанкур от одного из крупнейших застройщиков нндк. квартиру можно купить по ипотеке. квартира сдается в черновой отделке. рядом вся необходимая инфраструктура трц седьмое небо, магазины, школы и садики. рядом станция метро. в жк закрытая безопасная территория с ландшафтным дизайном и детской и спортивной площадками. в доме будет установлена станция очистки холодной воды. для автомобилей можно приобрести место на подземной парковке. на 1 этаже можно купить ситибокс место для хранения габаритных сезонных вещей.
продается 1 комнатная квартира на 3 этаже нового жилого комплекса бизнескласса грандквартал бетанкур от одного из крупнейших застройщиков нндк. квартиру можно купить по ипотеке. квартира сдается в черновой отделке. рядом вся необходимая инфраструктура трц седьмое небо, магазины, школы и садики. рядом станция метро. в жк закрытая безопасная территория с ландшафтным дизайном и детской и спортивной площадками. в доме будет установлена станция очистки холодной воды. для автомобилей можно приобрести место на подземной парковке. на 1 этаже можно купить ситибокс место для хранения габаритных сезонных вещей.
Похожие однокомнатные квартиры в районе Канавинский





