Продается двухкомнатная квартира
Бориса Панина 5к6, район Советский
26.01.2026



























Стоимость
14 900 000 ₽
236 507 рублей за м2
236 507 рублей за м2
Количество комнат
2 комн
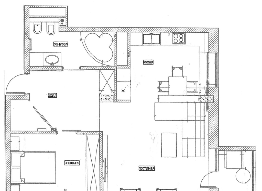
Общая площадь
63 м²
Этаж
14 из 16
Несуществующий объект, неправильная информация? - обязательно сообщите.
Дополнительная информация:
продается двухкомнатная квартира. полностью оснащена мебелью. в квартире остается всё, кроме бытовой техники.сделан качественный дизайнерский ремонт. стены декоративная штукатурка и мозаика. пол массив дерева и керамогранит электрический теплый пол. ванна riho чехия, краны hansgrohe. столешница на кухне из натурального камня. мягкая мебель mbelzeit. техника телевизор sony, вытяжка elica, водонагреватель thermex, кондиционеры panasonic, электрический камин. многоуровневое освещение.функциональная перепланировка большая кухнягостиная, изолированная спальня со встроенным шкафомкупе, большая прихожая с 2 встроенными шкафами, совмещенный санузел 6,6 кв.м, балкон. квартира находится в жк подкова на панина, есть детские и спортивные площадки, в шаговой доступности супермаркеты и школа. два взрослых собственника, больше 5 лет в собственности. свободная продажа. без обременений. никто не прописан
продается двухкомнатная квартира. полностью оснащена мебелью. в квартире остается всё, кроме бытовой техники.сделан качественный дизайнерский ремонт. стены декоративная штукатурка и мозаика. пол массив дерева и керамогранит электрический теплый пол. ванна riho чехия, краны hansgrohe. столешница на кухне из натурального камня. мягкая мебель mbelzeit. техника телевизор sony, вытяжка elica, водонагреватель thermex, кондиционеры panasonic, электрический камин. многоуровневое освещение.функциональная перепланировка большая кухнягостиная, изолированная спальня со встроенным шкафомкупе, большая прихожая с 2 встроенными шкафами, совмещенный санузел 6,6 кв.м, балкон. квартира находится в жк подкова на панина, есть детские и спортивные площадки, в шаговой доступности супермаркеты и школа. два взрослых собственника, больше 5 лет в собственности. свободная продажа. без обременений. никто не прописан
Похожие двухкомнатные квартиры в районе Советский





